• Home
What we do
  • Profile
  • Barn Conversions
  • Bespoke Housing
  • Extension & Conversions
  • Heritage & Culture
  • Masterplanning
  • PassivHaus & Low Energy
  • Flat Developments
  • Commercial
  • Full Portfolio
Contact
Jon Boon
  • Home
What we do
  • Profile
  • Barn Conversions
  • Bespoke Housing
  • Extension & Conversions
  • Heritage & Culture
  • Masterplanning
  • PassivHaus & Low Energy
  • Flat Developments
  • Commercial
  • Full Portfolio
Contact

Village Hall, Garvestone

Context Renders
Proposed Isometric Cuts
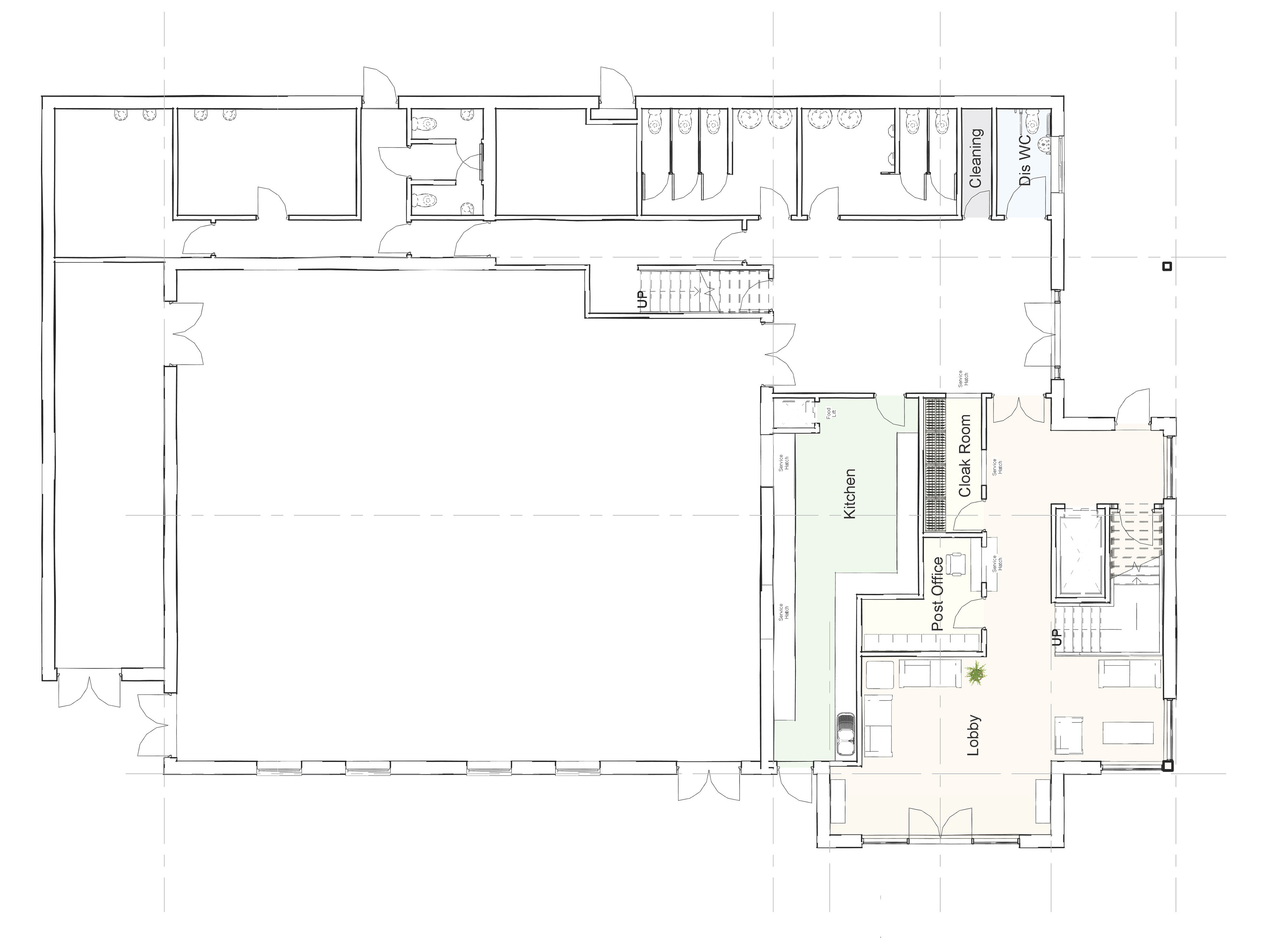
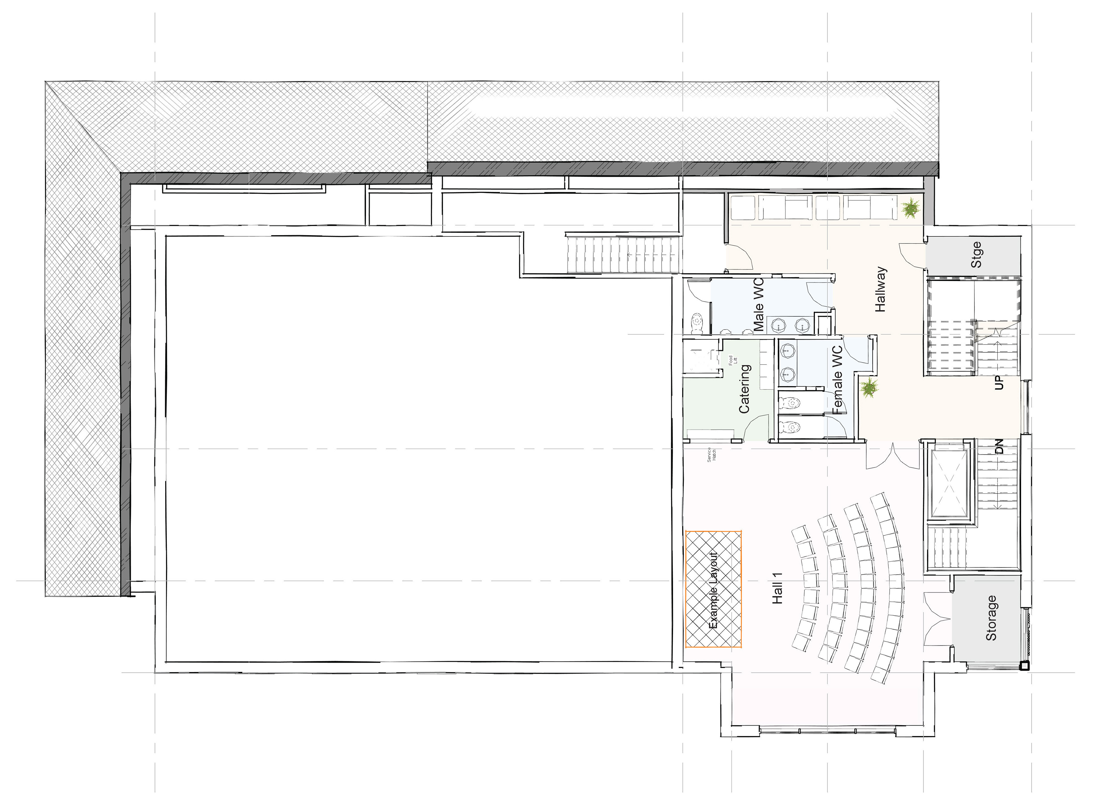
Proposed Ground Floor Plan
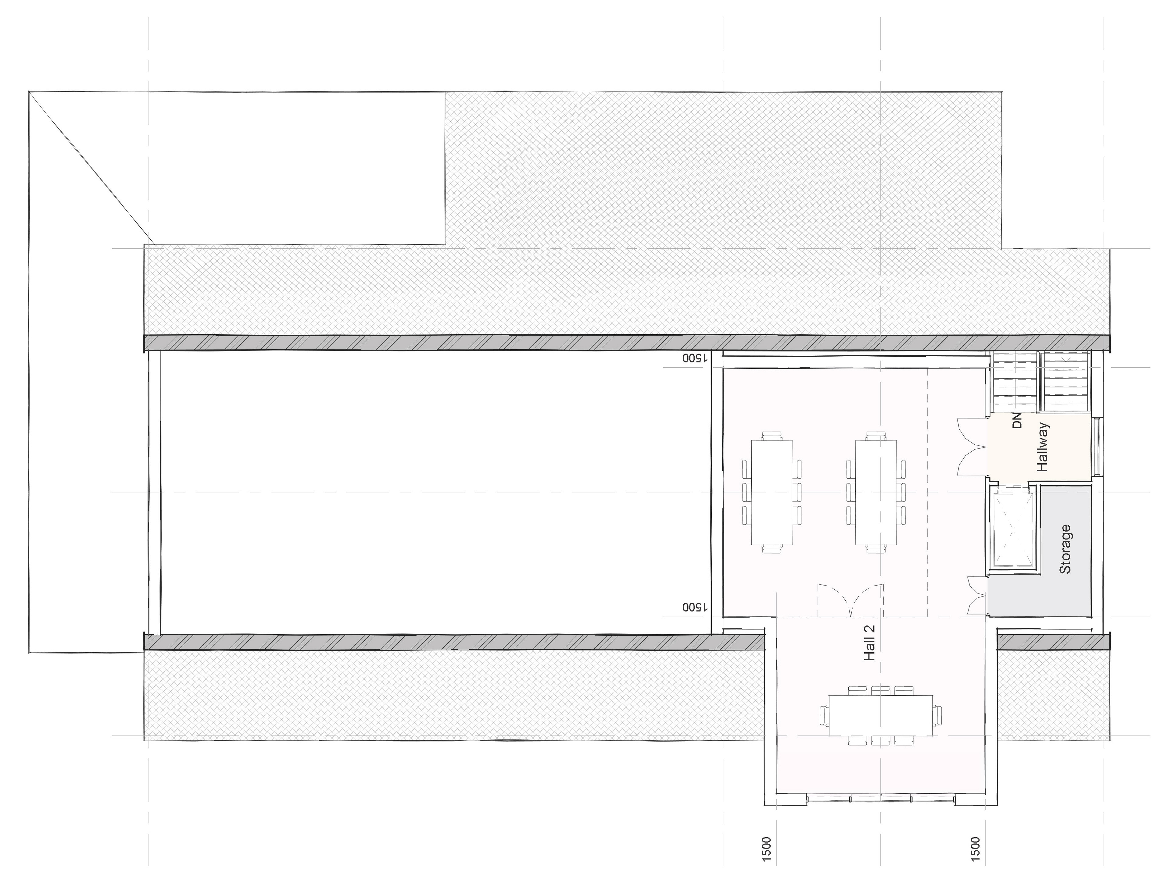
Proposed First  Floor Plan
Proposed Second Floor Plan
Proposed Site Plan

You may also like

2023
Heath Road, Snetterton
2023
School House
2023
Carbrooke Housing Estate
2023
Hargham Road, Attleborough
2021
Church Farm
2023
Taverham
2022
Fen Farm, Carbrooke
2022
Cressingham Road, Saham Toney
2021
Bleach Farm
2021
Grub Street
↑Back to Top

We use some essential cookies to make this service work.We’d also like to use analytics cookies so we can understand how you use the service and make improvements. Accept Decline