• Home
What we do
  • Profile
  • Barn Conversions
  • Bespoke Housing
  • Extension & Conversions
  • Heritage & Culture
  • Masterplanning
  • PassivHaus & Low Energy
  • Flat Developments
  • Commercial
  • Full Portfolio
Contact
Jon Boon
  • Home
What we do
  • Profile
  • Barn Conversions
  • Bespoke Housing
  • Extension & Conversions
  • Heritage & Culture
  • Masterplanning
  • PassivHaus & Low Energy
  • Flat Developments
  • Commercial
  • Full Portfolio
Contact

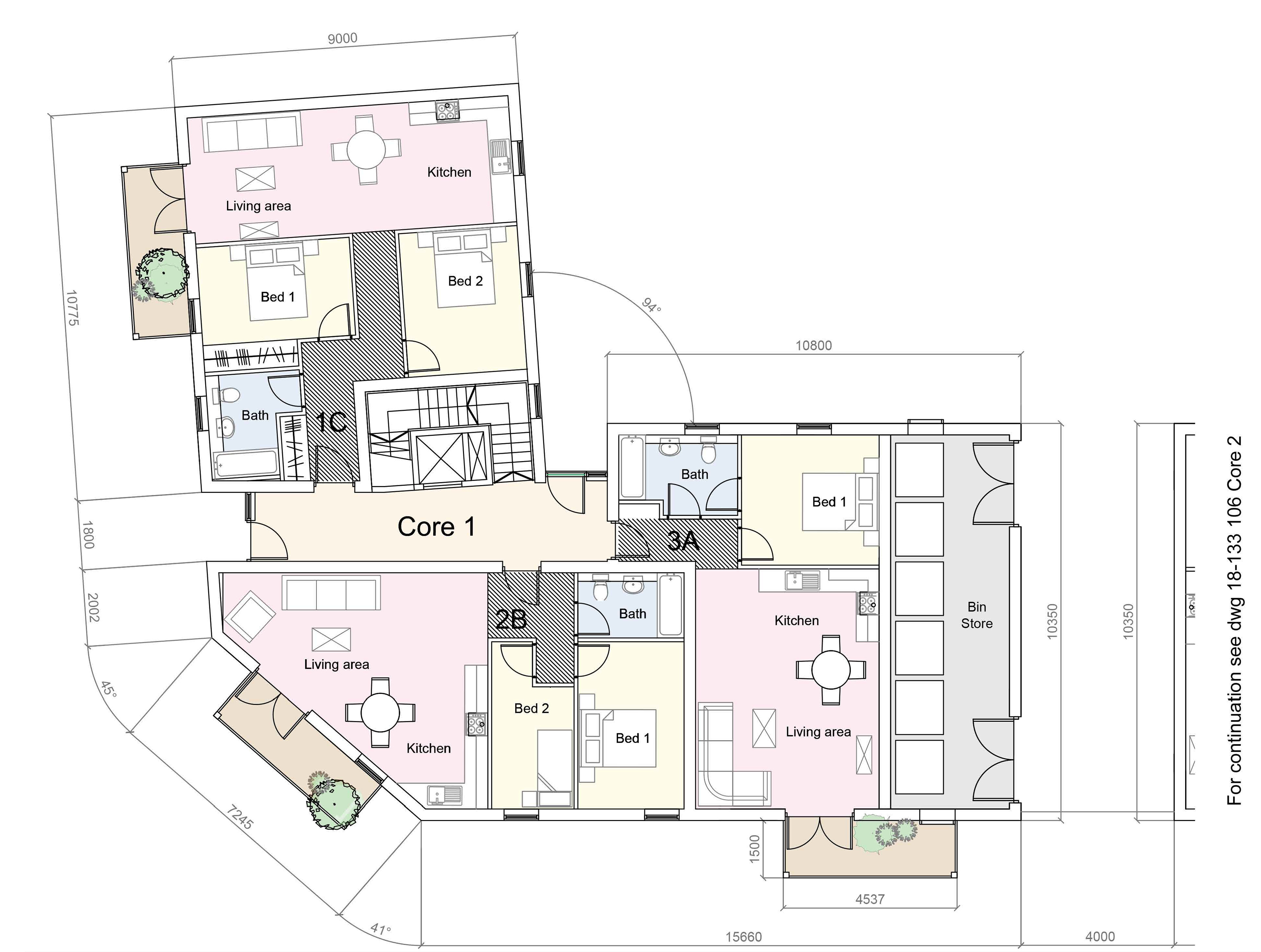
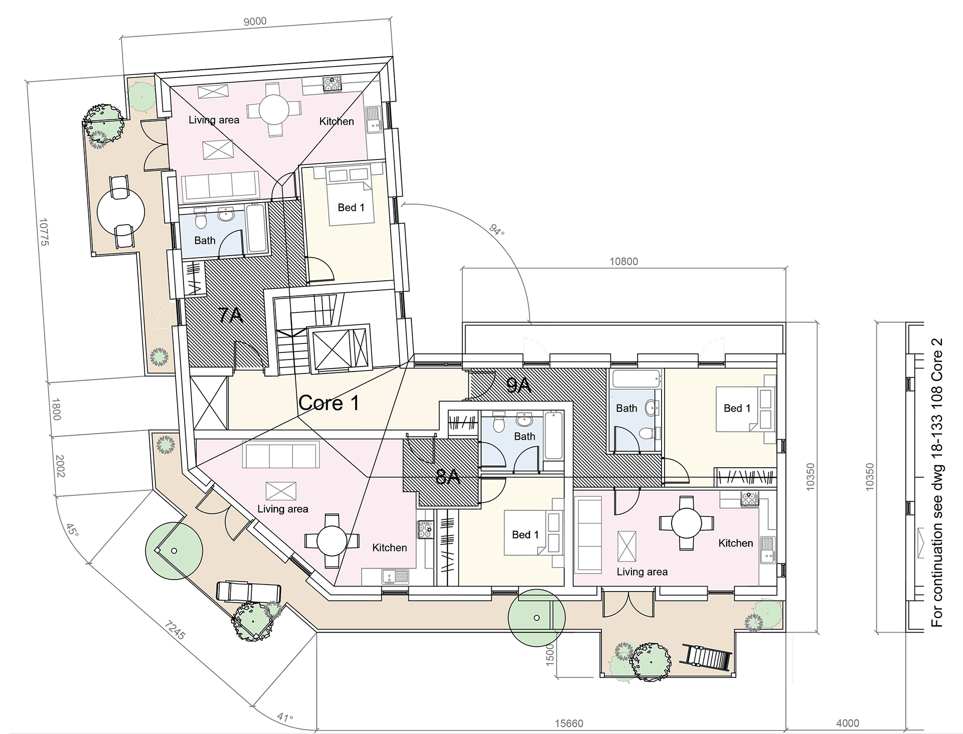
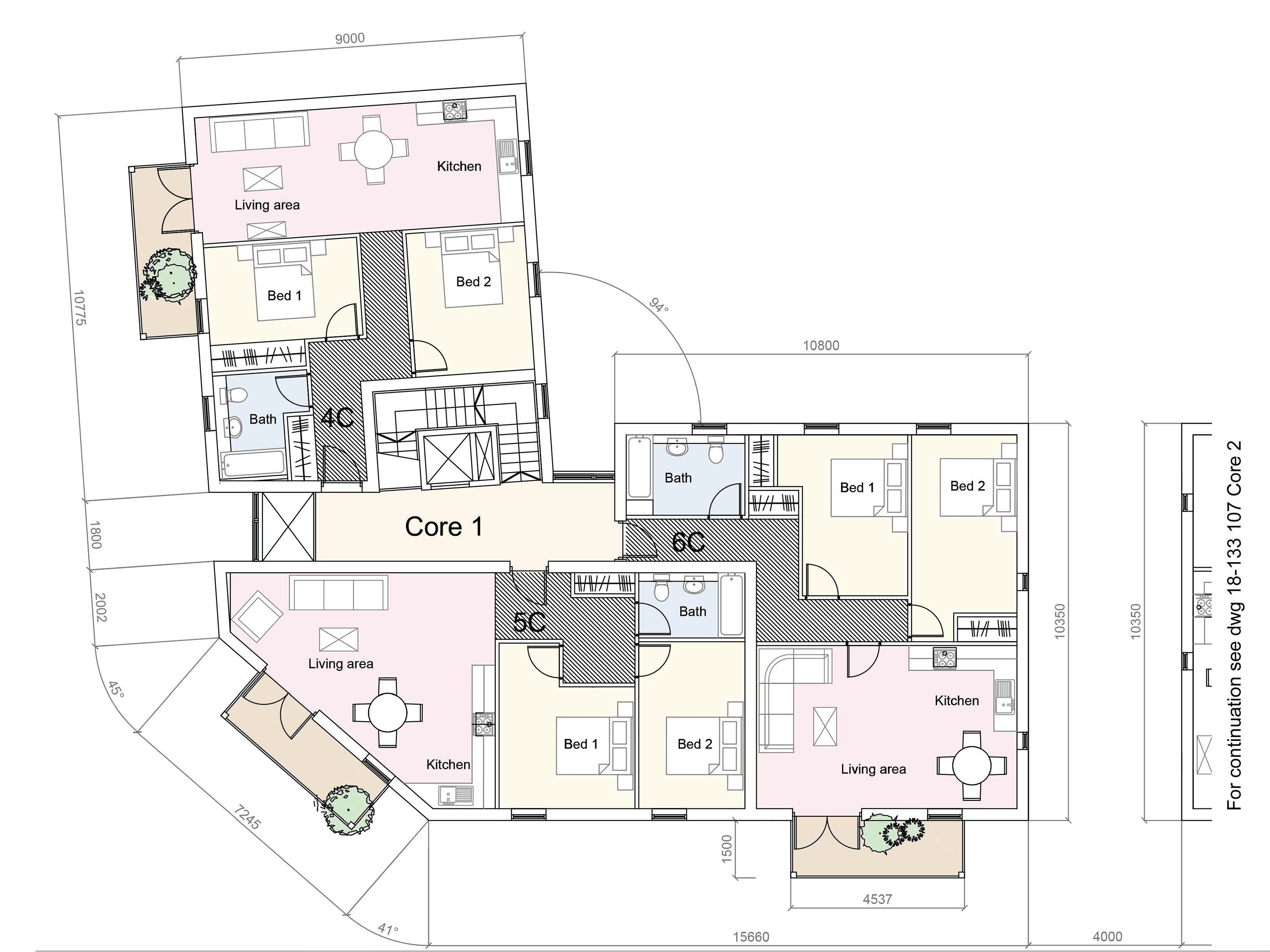
Barrack Street

You may also like

2023
School House
2023
Taverham
2023
Glebe Farm
2023
Heath Road, Snetterton
2023
Carbrooke Housing Estate
2023
Bluebell Road
2023
Beetley, North End Farm
2022
Cressingham Road, Saham Toney
2023
Village Hall, Garvestone
2022
The Old Nag's Head
↑Back to Top

We use some essential cookies to make this service work.We’d also like to use analytics cookies so we can understand how you use the service and make improvements. Accept Decline